Cambridge Apartments
Favorites IconFavorite
$3,000The price shown reflects a 12-month lease. Fees may apply.

345 Franklin St #109 · Apartment for Rent

Cambridge Apartments·Riverside Apartments
Beautiful one bedroom apartment in a fantastic location! Excellent management company. Perfect layout for flexible living options. Must see! Call today for more details and a showing. Located on a quiet side street, yet just steps to bustling Central Square. Each large modern apartment featured hardwood living areas, carpeted bedrooms, ceramic tile kitchens baths, washer/dryer hookups, fireplace, European-style cabinetry, granite counter tops, stainless steel appliances, dishwasher, garbage disposal, and a balcony (floors 2-5)! Additionally, the building features laundry facilities, 24-hour emergency maintenance, available outdoor and garage parking, and is only three blocks to the MBTA Central Square station. Disclaimer: The information in this listing may have been gathered from third-party sources including the owner and/or public records. Listings are subject to errors and omissions. Encore Realty disclaims any and all representations or warranties as to the accuracy of this information. Encore Realty is an Equal Housing Opportunity Agency. Photos may not always be of the actual apartment. At times, sample images are used to make a general representation. By clicking on our ad, you are requesting to hire Blue Stream Real Estate dba Encore Realty and its agents unless explicitly stated otherwise. You understand that we are your hired party and have no contract, written, verbal, or otherwise with the landlord(s) of any property we may show you.
Listed 5+ Days Ago
Apartment Amenities
Balcony
Carpet
Dishwasher
Fireplace
Hardwood Floor
In-Unit Laundry
On-Site Laundry
Other Amenities
Onsite Laundry
Ceramic Tiles

Policies & Fees

Applicants

Applicants

One-time.

Contact Property

REQUIRED FEES

Security Deposit

One-time. Refundable.

Contact Property

Dog Policy

Not allowed

Cat Policy

Not allowed

No pets allowed.

Questions about this property’s policies and fees?

Details

  • Price
    $3,000The price shown reflects a 12-month lease. Fees may apply.
  • Bedrooms
    1 Bedroom
  • Bathrooms
    1 Bathroom
  • Available
    Now
  • Square Feet
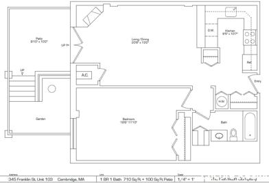
    999 SQFT
  • Min. Lease
  • Address
    345 Franklin St #109, Cambridge, MA 02139
  • Broker Fee?
  • Cats/Dogs Allowed?
    No pets
agent
Posted by:Encore Realty
Love this listing? We can alert you when similarly priced 1 Bedroom apartments become available in this area.
bell-outlineSave

Explore near 345 Franklin St #109

Cambridge Apartments·Riverside Apartments
345 Franklin St #109, Cambridge, MA is a 1 bedroom, 1 bathroom apartment for rent. It is located in the Riverside neighborhood of Cambridge. It has apartment amenities including on-site laundry, in-unit laundry, carpet, balcony, fireplace, dishwasher, and hardwood floor.