Property Status: Active
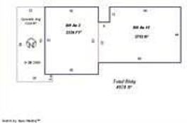
Front part of building is the only part available for LEASE. approximately 2226 square feet MOL, There are actually 2 (two) separate rooms, each around 1100 sq feet give or take. Participating broker and lessee need to verify square, school information and any other particulars pertaining to leasing a commercial lease This is a modified triple net lease. Owner/Landlored covers real estate taxes and hazard insurance , not contents, tenant pays ALL utilities. Owner prefers not to rent to marijiuana related business.
Office Phone: (405) 242-4004
Copyright © 2025 MLSOK, Inc. All rights reserved. All information provided by the listing agent/broker is deemed reliable but is not guaranteed and should be independently verified.

Business Center
Policies & Fees
Contact for more information on pet policy.