Bummer, it looks like this pad is no longer available 😯

Not what you're looking for?

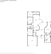
11910 Whistling Way · Apartment for Rent

Sarasota-Bradenton Apartments·Lakewood Apartments
Pet Friendly

Let me know when this rental is available.

+13 photos
Lease this home and get more from Invitation Homes professional property management. This home comes fully loaded with quality amenities, must-have services, high-end tech and ProCare® professional maintenance. Your estimated total monthly payment is $3204.90. That covers your base rent, $2940.00 + our required services designed to make your life easier: Air Filter Delivery Fee ($9.95), Internet & Media ($85), Pool Maintenance Fee ($120), Smart Home with video doorbell ($40), and Utility Billing Service Fee ($9.95). Base rent varies based on selected lease term. If you feel like you need this house in your life, click the heart and let's get you inside. This house is a blank slate. Turn it into your personal retreat where you can cancel plans with peace of mind. Cozy up by the living area with luxury vinyl plank floors. Here you're free to do what makes you happy. You’ll love the beautiful kitchen complete with high-end cabinets, sleek countertops, and stainless-steel appliances. The cooking space is roomy and set up to accommodate a cook who knows their way around the kitchen. Grab your towel and float in the pool while your pets enjoy their time lounging in the sun. Apply online today! At Invitation Homes, we offer pet-friendly, yard-having homes for lease with Smart Home technology in awesome neighborhoods across the country. Live in a great house without the headache and long-term commitment of owning. Discover your dream home with Invitation Homes. Our Lease Easy bundle – which includes Smart Home, Air Filter Delivery, and Utilities Management – is a key part of your worry-free leasing lifestyle. These services are required by your lease at an additional monthly cost. Monthly fees for pets and pools may also apply. Home Features and Amenities: Air Conditioning, Garage, Long Lease Terms, Luxury Vinyl Plank, Pet Friendly, Pool, Primary Bedroom on Main, Recessed Lighting, Single Story House, Smart Home, Stainless Steel Appliances, Tile, Walk in Closet, W/D Hookups, and professionally managed by Invitation Homes. Invitation Homes is an equal housing lessor under the FHA. Applicable local, state and federal laws may apply. Additional terms and conditions apply. This listing is not an offer to rent. You must submit additional information including an application to rent and an application fee. All leasing information is believed to be accurate, but changes may have occurred since photographs were taken and square footage is estimated. See InvitationHomes website for more information. Beware of scams: Employees of Invitation Homes will never ask you for your username and password. Invitation Homes does not advertise on, Social Serve, etc. We own our homes; there are no private owners. All funds to lease with Invitation Homes are paid directly through our website, never through wire transfer or payment app like Zelle, Pay Pal, or Cash App. invitationhomes com fraud-prevention For more info, please submit an inquiry for this home. Applications are subject to our qualification requirements. Additional terms and conditions apply. CONSENT TO CALLS & TEXT MESSAGING: By entering your contact information, you expressly consent to receive emails, calls, and text messages from Invitation Homes including by autodialer, prerecorded or artificial voice and including marketing communications. Msg & Data rates may apply. You also agree to our Terms of Use and our Privacy Policy.
Apartment Amenities
Walk-In Closets
Building Amenities
Garage Parking
Swimming Pool
Other Amenities
Walk-in Closet
Garage Attached

Policies & Fees

Applicants

Applicants

One-time.

Contact Property

REQUIRED FEES

Security Deposit

One-time. Refundable.

Contact Property

Air Filter Delivery Fee

Monthly.

$9.95

Internet & Media

Monthly.

$85

Utility Billing Service Fee

Monthly.

$9.95

Pool Maintenance Fee

Monthly.

$120

Smart Home With Video Doorbell

Monthly.

$40

Dog Policy

Allowed

Cat Policy

Allowed

Contact for more information on pet policy.

Details

  • Bedrooms
    4 Bedroom
  • Bathrooms
    2 Bathrooms
  • Square Feet
    2,267 SQFT
  • Min. Lease
  • Address
    11910 Whistling Way, Sarasota-Bradenton, FL 34202
  • Broker Fee?
  • Cats/Dogs Allowed?
    Dogs & Cats

Let me know when this rental is available.

Love this listing? We can alert you when similarly priced 4 Bedroom apartments become available in this area.
bell-outlineSave

Explore near 11910 Whistling Way

Sarasota-Bradenton Apartments·Lakewood Apartments
11910 Whistling Way, Sarasota-Bradenton, FL is a 4 bedroom, 2 bathrooms apartment for rent. It is located in the Lakewood neighborhood of Sarasota-Bradenton. It has apartment amenities including walk-in closets. Cats and dogs are allowed, making it a pet-friendly apartment.