Charlotte Apartments
Favorites IconFavorite
$1,895

8804 Old Potters Road · Apartment for Rent

Charlotte Apartments·West Sugar Creek Apartments
Pet Friendly
+14 photos
Please note, our homes are available on a first-come, first-serve basis and are not reserved until the lease is signed by all applicants and security deposits are collected. This home features Progress Smart Home - Progress Residential's smart home app, which allows you to control the home securely from any of your devices. Learn more at rentprogress com smarthome Want to tour on your own? Click the “Self Tour” button on this home’s RentProgress. com listing or call (704) 343-8622 to register for a self-guided showing at a time that works best for you. Interested in this home? You clearly have exceptional taste. This charming 3.0-bedroom, 2.5-bathroom home is not only pet-friendly, but also equipped with smart home features to make everyday life more convenient and connected. Homes like this don’t stay on the market for long—don’t miss your chance to make it yours. Apply today! The Homeowners Association (HOA) for this home has a separate application process that applicants will need to complete in addition to Progress Residential's application. This includes self-registering with the HOA, completing the HOA's approval process, and paying any fees required by the HOA. Utilities must be transferred into the resident’s name. Some images have been virtually staged to help showcase the potential of spaces in the home. The furnishings shown are for illustrative purposes only and are not included in the home.
Listed 5+ Days Ago
Apartment Amenities
Ceiling Fan
Deck
Fireplace
On-Site Laundry
Outdoor Space
Walk-In Closets
Building Amenities
Garage Parking
On-Site Laundry
Other Amenities
Smart Home
Onsite Laundry
Dual Vanity Sinks
Stainless Steel Appliances
Loft
Central Air & Heat

Policies & Fees

Applicants

Application Fee

One-time. Agent application fee.

Contact Property

REQUIRED FEES

Security Deposit

One-time. Refundable.

Contact Property

Smart Home

Monthly. Refundable: Non-Refundable.

$19.99

Dog Policy

Allowed

Cat Policy

Allowed

Contact for more information on pet policy.

Questions about this property’s policies and fees?

Details

  • Price
    $1,895
  • Bedrooms
    3 Bedroom
  • Bathrooms
    2 Full, 1 Half Bath
  • Available
    Now
  • Square Feet
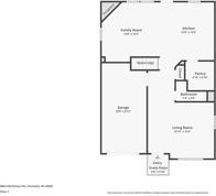
    1,876 SQFT
  • Min. Lease
  • Address
    8804 Old Potters Road, Charlotte, NC 28269
  • Broker Fee?
  • Cats/Dogs Allowed?
    Dogs & Cats
agent
Posted by:Progress Residential
Love this listing? We can alert you when similarly priced 3 Bedroom apartments become available in this area.
bell-outlineSave

Explore near 8804 Old Potters Road

Charlotte Apartments·West Sugar Creek Apartments
8804 Old Potters Road, Charlotte, NC is a 3 bedroom, 2 bathrooms apartment for rent. It is located in the West Sugar Creek neighborhood of Charlotte. It has apartment amenities including fireplace, ceiling fan, deck, on-site laundry, outdoor space, and walk-in closets. Cats and dogs are allowed, making it a pet-friendly apartment.