Pembroke Pines Apartments
Favorites IconFavorite
$3,845

16343 Nw 21st St · Apartment for Rent

Pembroke Pines Apartments
Pet Friendly
+16 photos
Lease this home and get more from Invitation Homes professional property management. This home comes fully loaded with quality amenities, must-have services, high-end tech and ProCare® professional maintenance. Your estimated total monthly payment is $3989.90. That covers your base rent, $3845.00 + our required services designed to make your life easier: Air Filter Delivery Fee ($9.95), Internet & Media ($85), Smart Home with video doorbell ($40), and Utility Billing Service Fee ($9.95). Base rent varies based on selected lease term. Taking time for yourself will be even easier in a house fitted to your needs. Inject your personality into this beautiful house and you will feel right at home. When you walk into this beautiful house, you will find spacious bedrooms, a finished garage, a stylish tile, and luxury vinyl plank flooring. You’ll love the beautiful kitchen, complete with stainless steel appliances, spacious cabinets and sleek countertops. The backyard brings the whole house together. And when you need a breath of fresh air, step out into a fenced backyard complete with a brunch-ready covered patio. Neighborhood amenities include a pool and a tot lot. Apply online today! At Invitation Homes, we offer pet-friendly, yard-having homes for rent with Smart Home technology in awesome neighborhoods across the country. Live in a great house without the headache and long-term commitment of owning. Discover your dream home with Invitation Homes. Our Lease Easy bundle – which includes Smart Home, Air Filter Delivery, and Utilities Management – is a key part of your worry-free leasing lifestyle. These services are required by your lease at an additional monthly cost. Monthly fees for pets and pools may also apply. Home Features and Amenities: Air Conditioning, Breakfast Nook, Fenced Yard, Garage, Long Lease Terms, Luxury Vinyl Plank, Patio, Pet Friendly, Smart Home, Stainless Steel Appliances, Tile, Walk in Closet, W/D Hookups, and professionally managed by Invitation Homes. Neighborhood Features and Amenities: Community Pool, Tot Lot Invitation Homes is an equal housing lessor under the FHA. Applicable local, state and federal laws may apply. Additional terms and conditions apply. This listing is not an offer to rent. You must submit additional information including an application to rent and an application fee. All leasing information is believed to be accurate, but changes may have occurred since photographs were taken and square footage is estimated. Furthermore, prices and dates may change without notice. Every approved applicant must confirm the status of pet(s) in their home through Petscreening. com and pay applicable pet registration fees prior to the execution of the final lease agreement. See InvitationHomes website for more information. Beware of scams: Employees of Invitation Homes will never ask you for your username and password. Invitation Homes does not advertise on, Social Serve, etc. We own our homes; there are no private owners. All funds to lease with Invitation Homes are paid directly through our website, never through wire transfer or payment app like Zelle, Pay Pal, or Cash App. invitationhomes com fraud-prevention For more info, please submit an inquiry for this home. Applications are subject to our qualification requirements. Additional terms and conditions apply. CONSENT TO CALLS & TEXT MESSAGING: By entering your contact information, you expressly consent to receive emails, calls, and text messages fro..
Listed 5+ Days Ago
Apartment Amenities
Walk-In Closets
Building Amenities
Garage Parking
Outdoor Space
Other Amenities
Walk-in Closet
Patio
Fenced Yard
Breakfast Nook
Garage Attached

Policies & Fees

Applicants

Applicants

One-time.

Contact Property

REQUIRED FEES

Security Deposit

One-time. Refundable.

Contact Property

Air Filter Delivery Fee

Monthly.

$9.95

Internet & Media

Monthly.

$85

Utility Billing Service Fee

Monthly.

$9.95

Smart Home With Video Doorbell

Monthly.

$40

Dog Policy

Allowed

Cat Policy

Allowed

Contact for more information on pet policy.

Questions about this property’s policies and fees?

Details

  • Price
    $3,845
  • Bedrooms
    4 Bedroom
  • Bathrooms
    2 Full, 1 Half Bath
  • Available
    Now
  • Square Feet
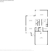
    2,316 SQFT
  • Min. Lease
  • Address
    16343 Nw 21st St 33028
  • Broker Fee?
  • Cats/Dogs Allowed?
    Dogs & Cats
agent
Posted by:Invitation Homes
Love this listing? We can alert you when similarly priced 4 Bedroom apartments become available in this area.
bell-outlineSave

Explore near 16343 Nw 21st St

Pembroke Pines Apartments
16343 Nw 21st St is a 4 bedroom, 2 bathrooms apartment for rent. It is located in Pembroke Pines. It has apartment amenities including walk-in closets. Cats and dogs are allowed, making it a pet-friendly apartment.